
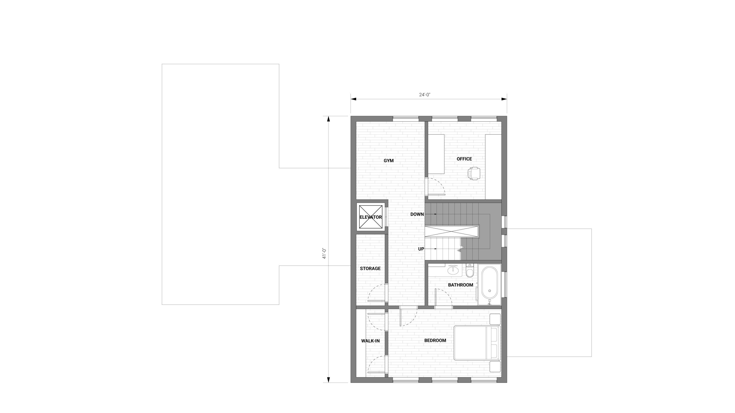
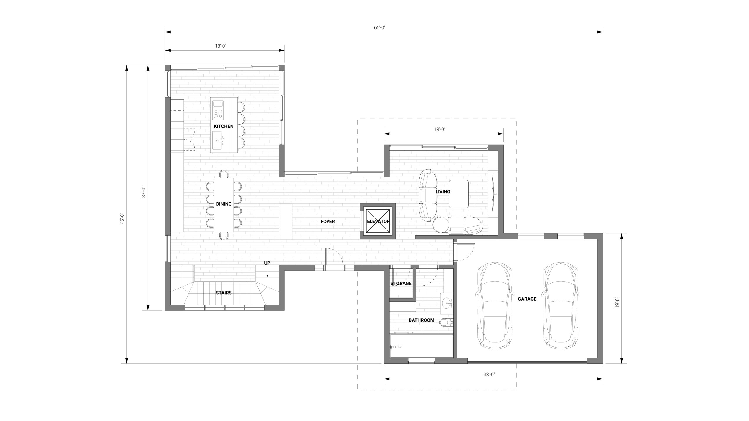
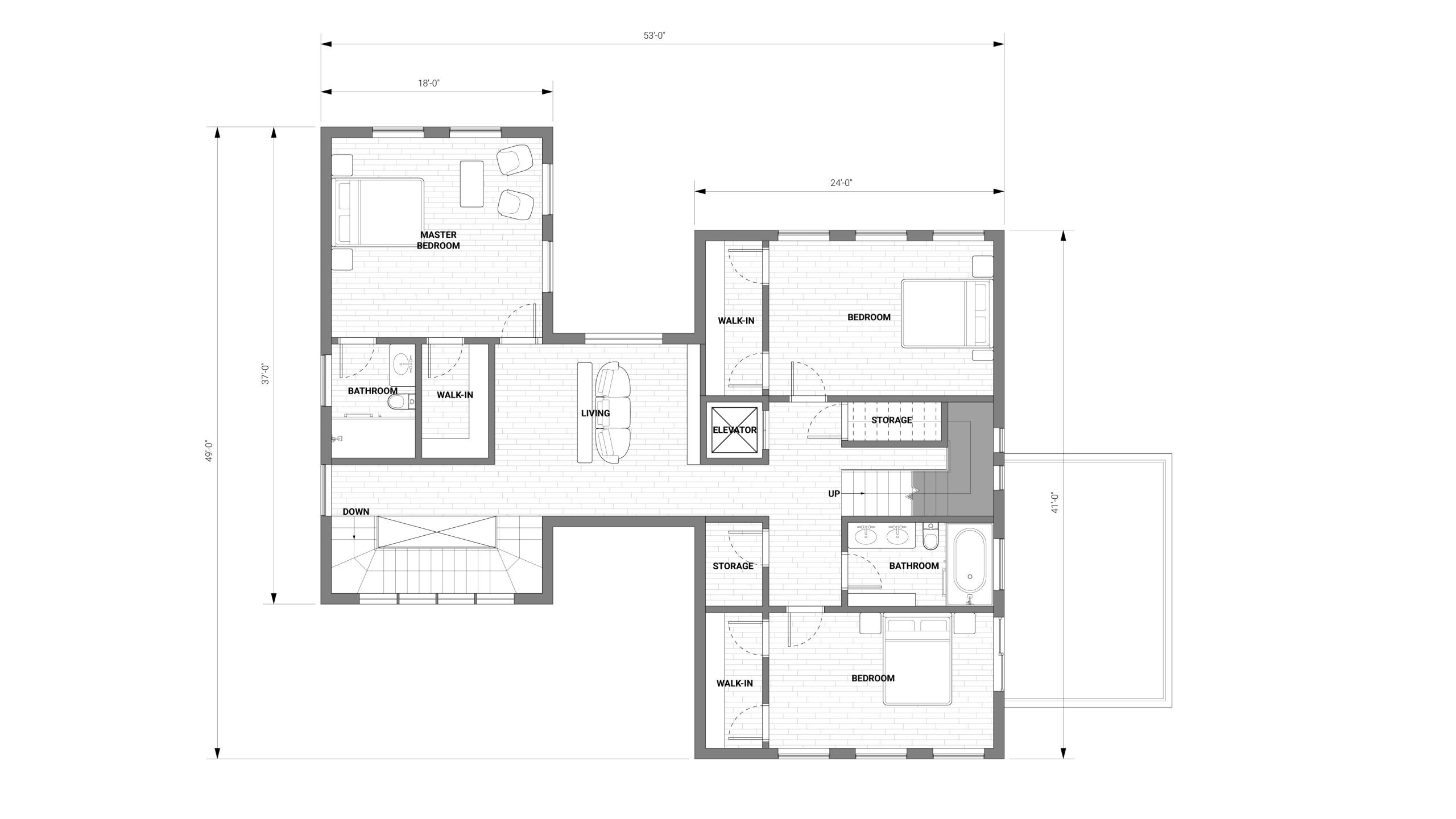
The contemporary residential design features a striking blend of modern aesthetics and natural harmony, boasting three bedrooms, including a luxurious master suite with an en-suite bathroom, complemented by two additional bathrooms. The home includes a two-car garage, an office, and a gym, offering ample space for both work and leisure.
Inspired by the surrounding natural landscape, the design integrates two large volumes connected by an elegant bridge, which serves as the primary entrance and seamlessly leads to the serene backyard. This bridge not only connects the living spaces but also provides a unique architectural focal point, enhancing the home’s overall visual appeal.
A standout feature of this residence is the infinity edge pool, which creates a seamless transition between the pool and the horizon, offering breathtaking views and a sense of tranquility. Additionally, a rooftop garden crowns the design, providing a lush, green oasis that fosters a connection to nature and offers a private retreat for relaxation and entertainment.
Sustainability is a key focus, with the home incorporating eco-friendly materials and technologies. Natural ventilation and abundant natural light flow throughout the spaces, reducing the need for artificial lighting and air conditioning. The use of natural materials, such as stone, wood, and glass, enhances the home’s connection to its environment, creating warm, inviting interiors that open up to the exterior, blurring the lines between indoor and outdoor living.








Interested in working with us?
Looking for a job opportunity?
1411 Broadway
New York, NY 10018
+16464666151
Practice Areas
Architecture
Planning
Sustainability
Urban Design
Space Architecture
© 2024, Daniel Inocente Architecture D.P.C. | DIA