
The Cascade Villa is a harmonious blend of contemporary design and tradition, using natural materials, including concrete and wood, to create an inviting and durable living environment.
The Cascade Villa is characterized by its wide, stepping design. Each floor is offset to create a dynamic visual effect, enhancing the villa’s architectural appeal and providing unique outdoor spaces on every level. The use of concrete provides a robust and modern aesthetic, while the warm tones of wood add a touch of nature.
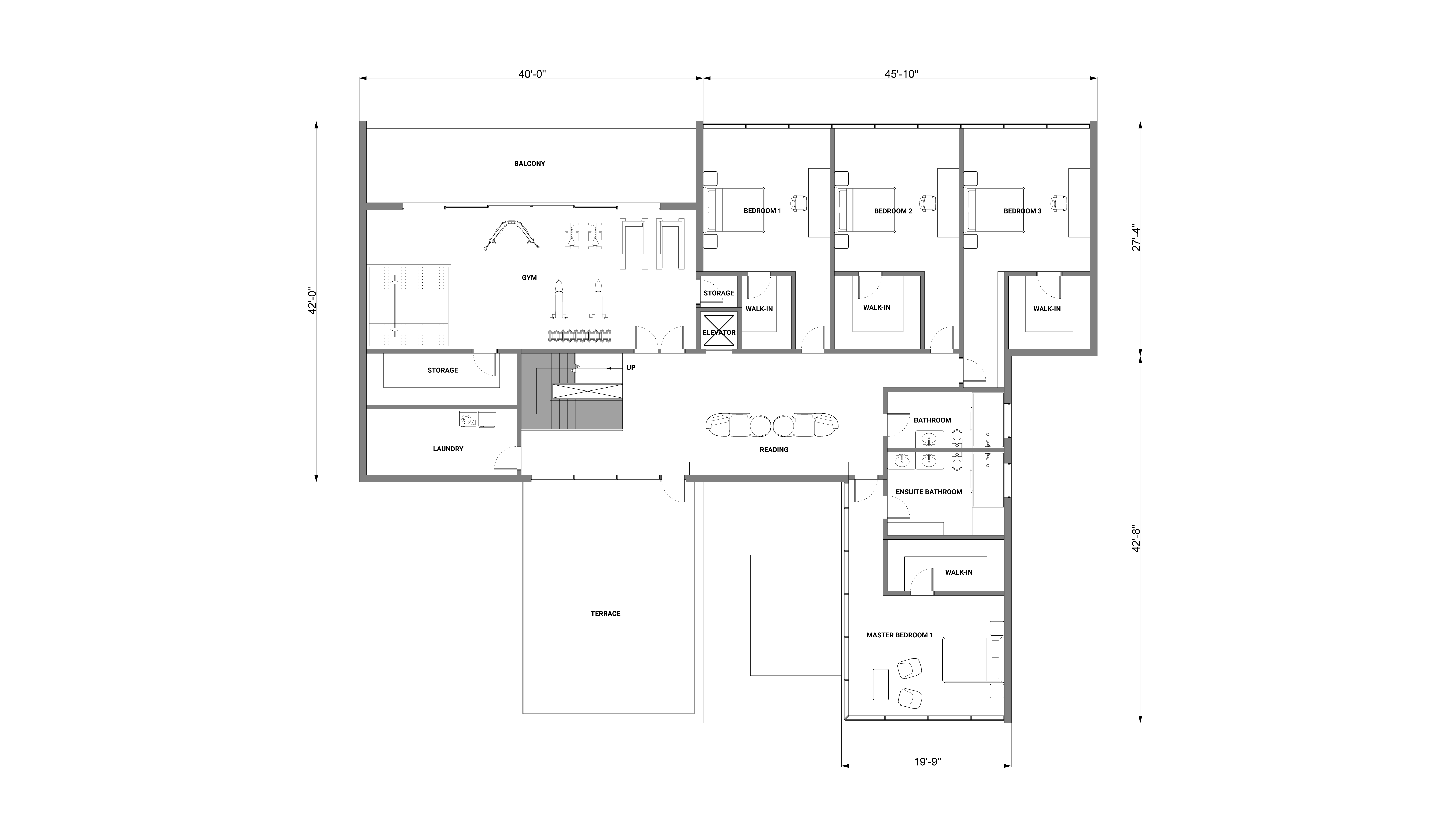
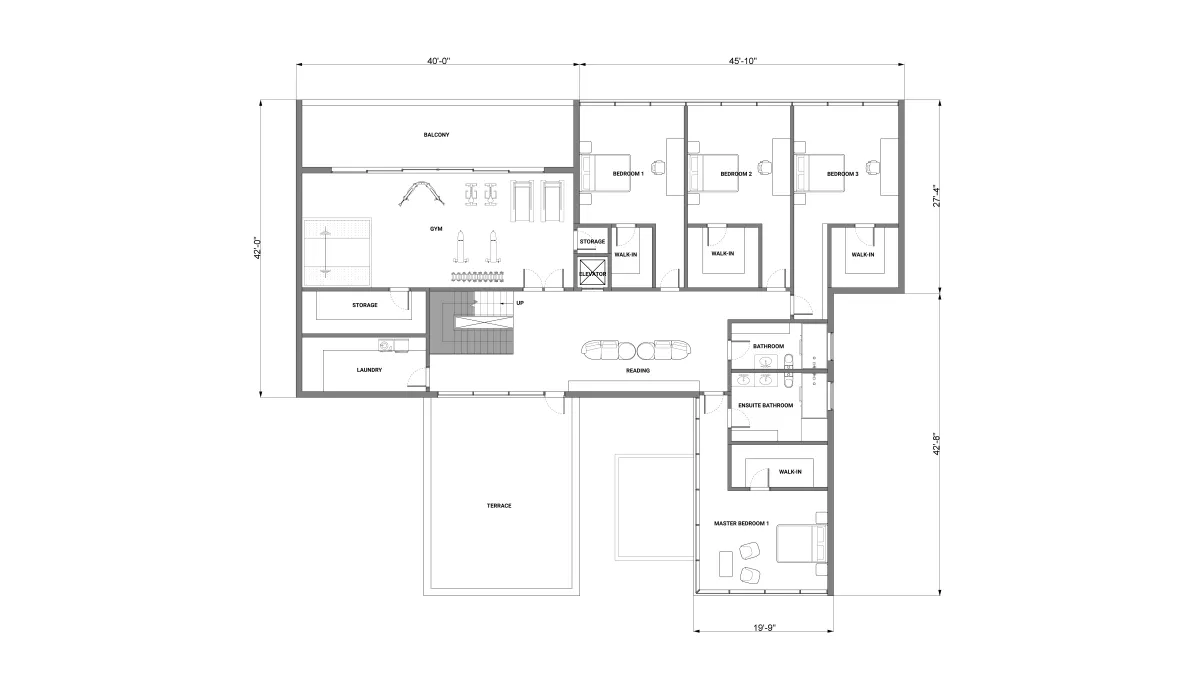
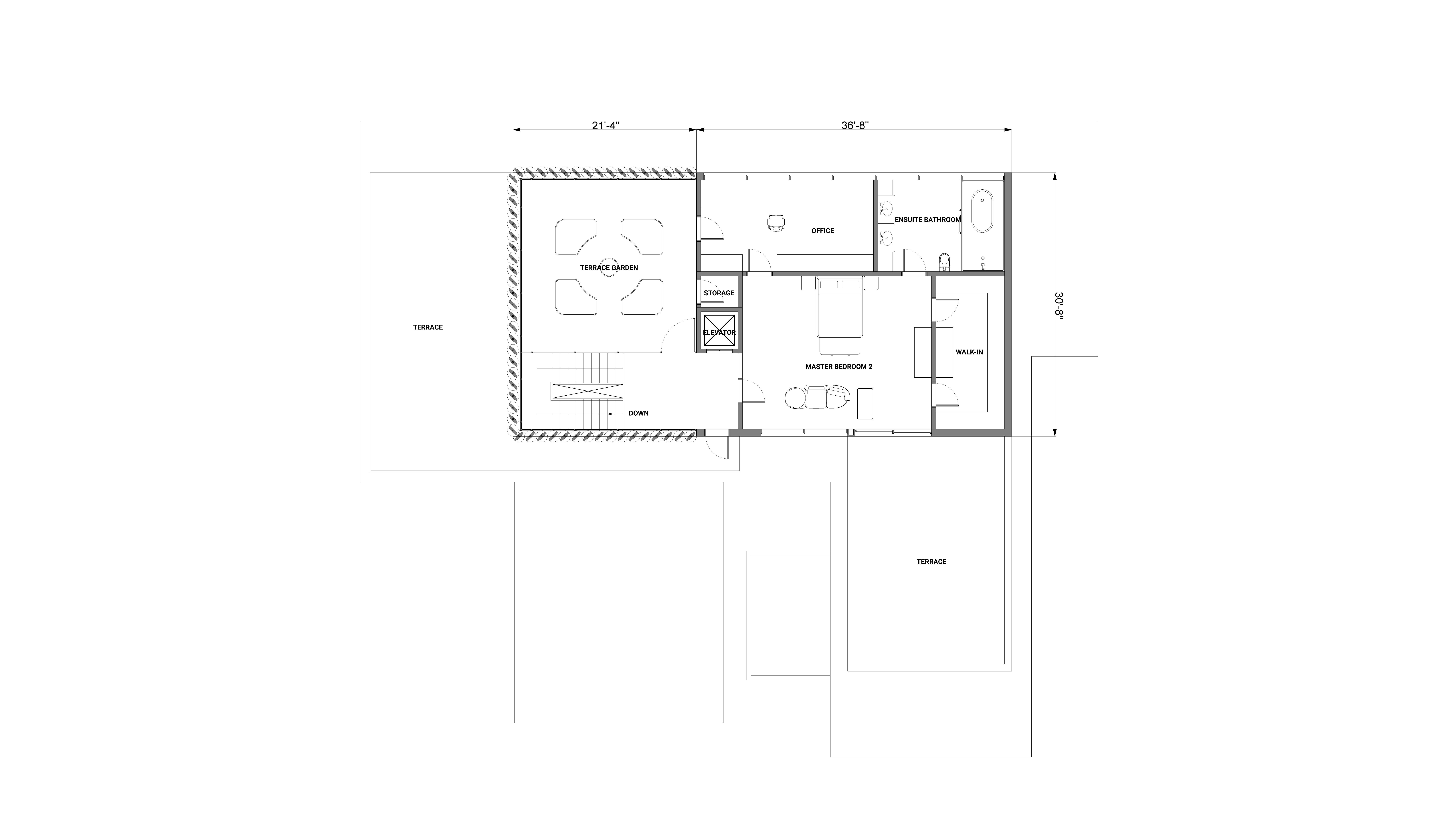
The interior includes five generously sized bedrooms, perfect for family living or accommodating guests. Each bedroom is designed with large windows, allowing for an abundance of natural light and offering stunning views of the surrounding landscape. Four elegantly designed bathrooms provide a sanctuary of relaxation, featuring high-end fixtures, luxurious materials, and thoughtful layouts that ensure comfort and privacy.
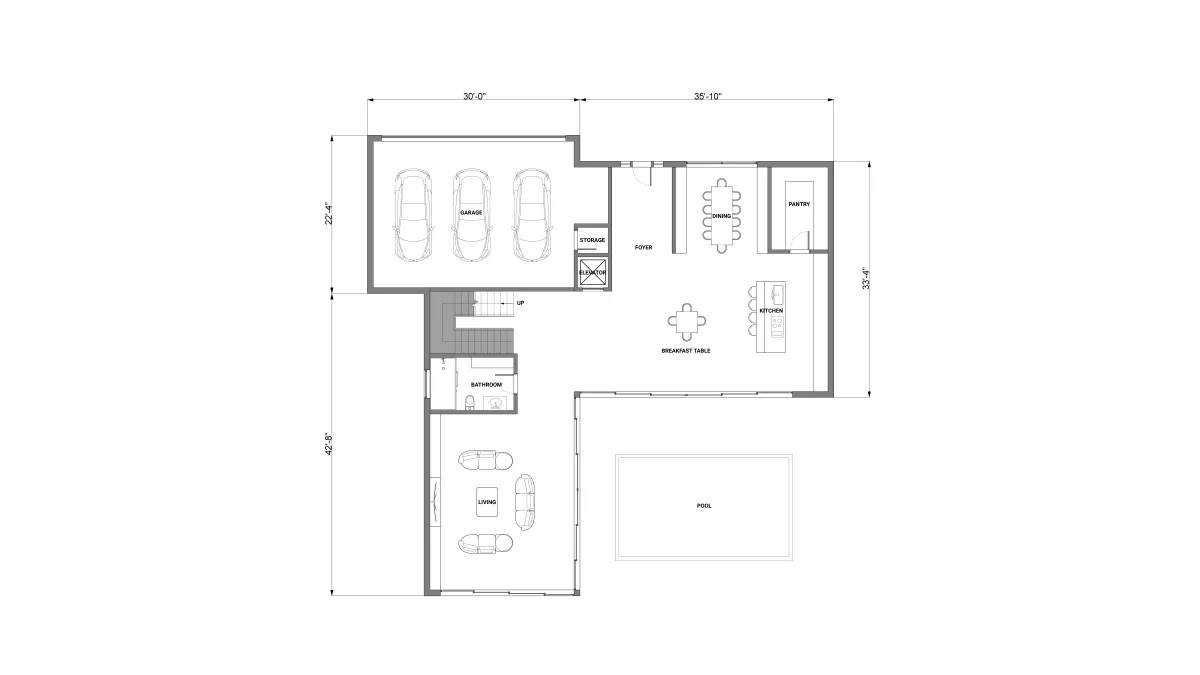
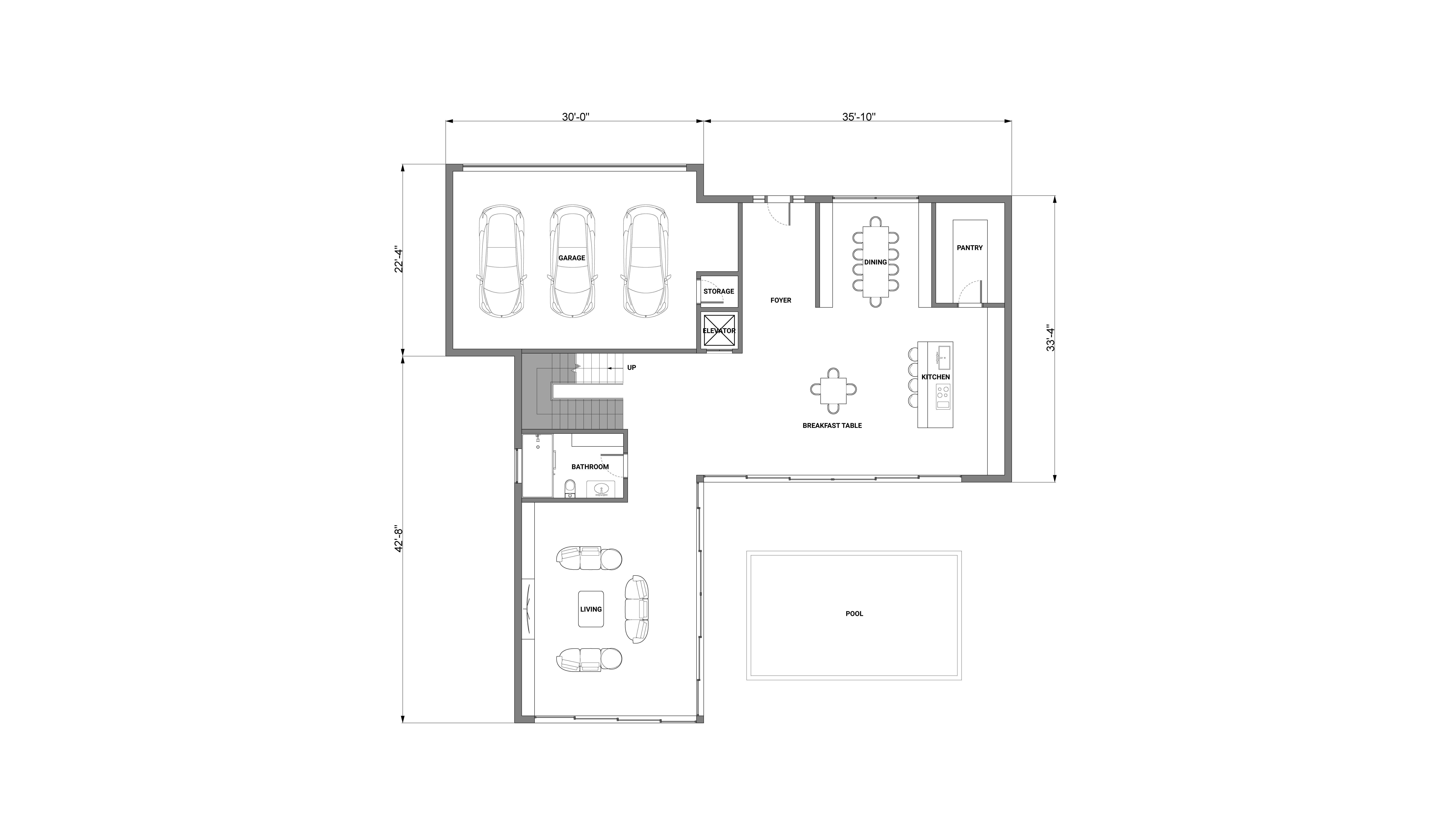
The open-plan living areas are seamlessly connected, offering a fluid transition between indoor and outdoor spaces. The living room boasts floor-to-ceiling windows, enhancing the connection with the exterior environment and creating a sense of openness and tranquility. The modern kitchen is a chef’s dream, equipped with state-of-the-art appliances, ample storage, and sleek, minimalist design.
The swimming pool, surrounded by a beautifully landscaped garden, offers a refreshing escape during warm summer days. The garden is designed with a variety of plants and trees, creating a lush, green haven for relaxation and outdoor activities.
The highlight of the outdoor space is the rooftop garden, featuring dynamic louvres that allow you to control the environment. These adjustable louvres provide shade and privacy as desired, ensuring a comfortable and serene outdoor experience. The terrace garden is an ideal spot for entertaining guests, enjoying a meal, or simply relaxing while taking in the views.
Sustainability is at the heart of the Cascade Villa’s design. The home incorporates energy-efficient systems, such as solar panels and advanced insulation materials, to reduce its carbon footprint. Water-saving fixtures and a rainwater harvesting system ensure responsible water use, while the integration of natural ventilation and lighting minimizes energy consumption. The selection of eco-friendly materials, including sustainably sourced wood and low-impact concrete, further underscores the commitment to environmental stewardship.
The Cascade Villa is not just a home. This villa stands out, offering a unique and elegant living experience that combines architectural design with everyday comfort and environmental responsibility.







Interested in working with us?
Looking for a job opportunity?
1411 Broadway
New York, NY 10018
+16464666151
Practice Areas
Architecture
Planning
Sustainability
Urban Design
Space Architecture
© 2024, Daniel Inocente Architecture D.P.C. | DIA